
剪力墻結構拉縫工藝做法
建筑主體結構接縫包括接縫和裂縫。其中接縫大多是設計設置的連接不同材料、構件或分割統一構件的規則縫隙;裂縫一般是意外發生的、走向和形狀不規則的。
1、預制剪力墻的頂面、底面和兩側面應處理為粗糙面或者制作鍵槽,與預制剪力墻連接的地梁上表面和圈梁上表面也應處理為粗糙面。粗糙面露出的混凝土粗骨料不宜小于其最大粒徑的1/3,且粗糙面凹凸不應小于6mm。
2、對高層預制裝配式剪力墻結構,樓層內相鄰預制剪力墻的連接應符合下列規定:
1)邊緣構件應現澆,現澆段內按照現澆混凝土結構的要求設置箍筋和縱筋;預制剪力墻的水平鋼筋應在現澆段內錨固,或者與現澆段內水平鋼筋焊接或搭接連接。構造如圖2-1所示。

2)相鄰預制墻片之間如無邊緣構件,應設置現澆段,現澆段的寬度應同墻厚,現澆段的長度,當預制剪力墻的長度不大于1500mm時不宜小于150mm,大于1500mm時不宜小于200mm;現澆段內應設置豎向鋼筋和水平環箍,豎向鋼筋配筋率不小于墻體豎向分布筋配筋率,水平環箍配筋率不小于墻體水平鋼筋配筋率;預制剪力墻的水平鋼筋應在現澆段內錨固,或者與現澆段內水平鋼筋焊接或搭接連接。構造如圖2-2所示。

3)現澆部分的混凝土強度等級應高于預制剪力墻的混凝土強度等級兩個等級或以上。
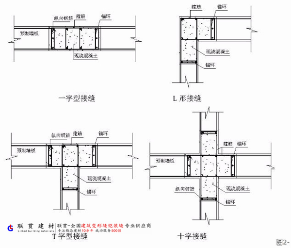
3、對多層預制裝配式剪力墻結構,樓層內相鄰預制剪力墻的連接應符合下列規定:
1)外墻轉角、內墻轉角、縱、橫墻交接部位、相鄰預制剪力墻之間應設置現澆段,現澆段的寬度應同墻厚,現澆段的長度應滿足水平鋼筋連接的要求;2)現澆部分的混凝土強度等級應高于預制剪力墻的混凝土強度等級兩個等級或以上;3)預制剪力墻的水平鋼筋應伸入現澆段;相鄰墻片的水平鋼筋可在現澆段內焊接連接或者錨固;現澆段內應設置豎向鋼筋,配筋率不小于墻體豎向分布筋配筋率。
4、裝配式剪力墻結構每層樓面處應設置封閉的現澆鋼筋混凝土圈梁,圈梁截面寬度不應小于剪力墻的厚度,截面高度不小于樓板厚度及120mm的較大值。圈梁應與現澆或者預制疊合樓蓋或屋蓋澆筑成整體。
5、上下層相鄰預制剪力墻的連接應符合下列規定:
1)預制剪力墻底與現澆圈梁之間應座漿,座漿宜采用高強灌漿料或者干硬性水泥砂漿,座漿厚度不宜大于20mm,其立方體抗壓強度應高于預制剪力墻混凝土立方體抗壓強度10MPa或以上,且不應低于60MPa;2)預制剪力墻的豎向鋼筋可采用漿錨套筒連接、漿錨搭接連接。連接構造應符合2~3條及相關規范的要求。